À contre-pente

yh2 - Yiacouvakis Hamelin Architectes

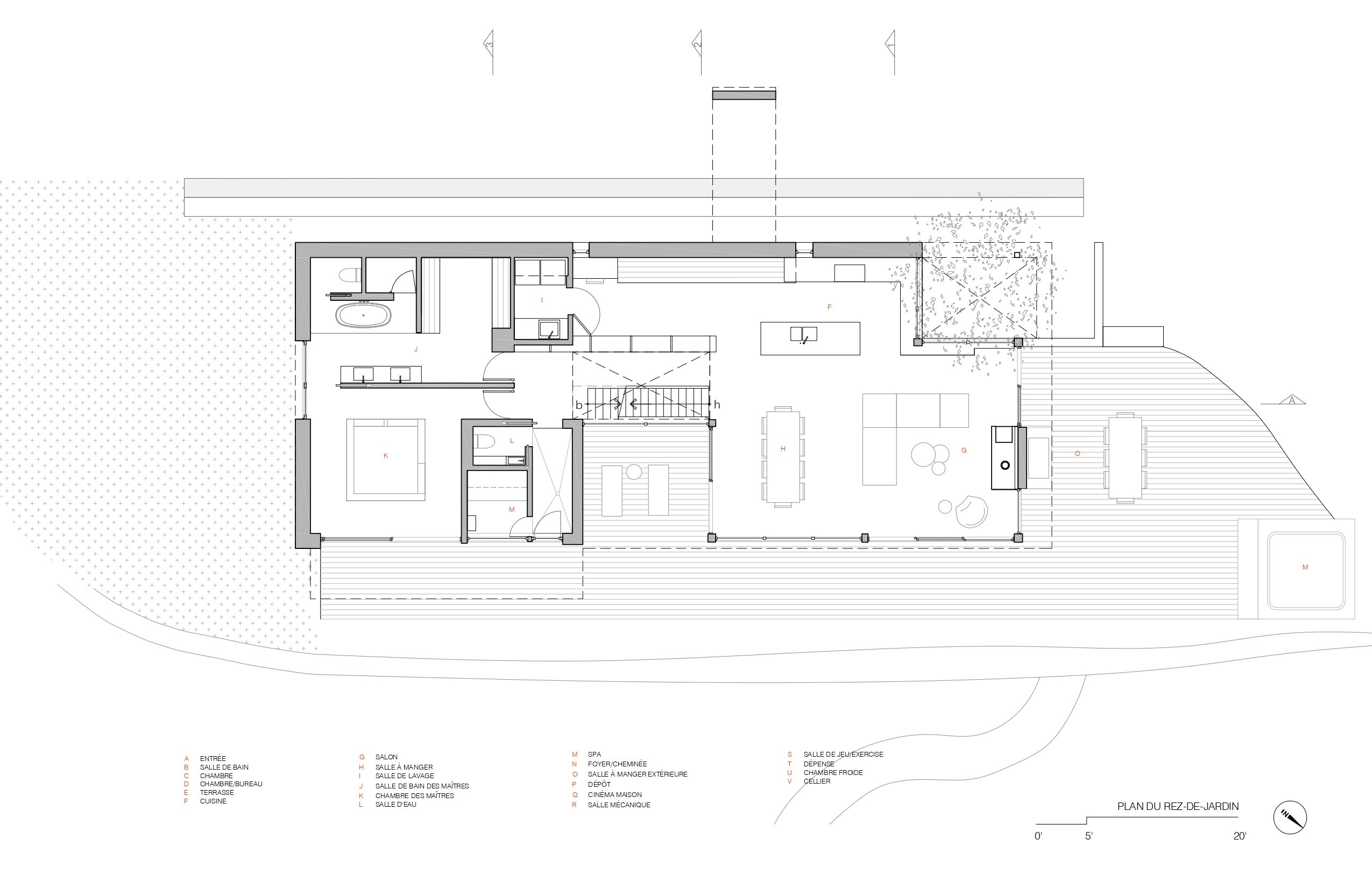
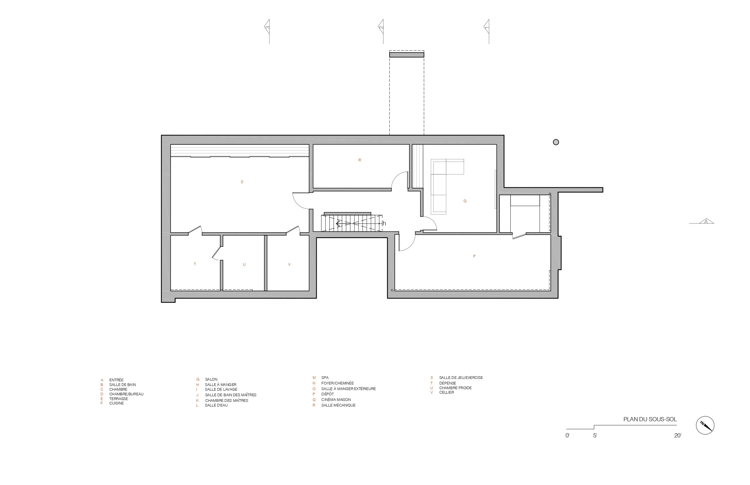
Le projet

Topographie habitée : une dialectique du lieu

Implantée sur les rives du lac Memphrémagog, dans la municipalité de Potton, cette résidence s’inscrit dans un paysage de forte intensité géographique et atmosphérique. Le site, marqué par une pente abrupte plongeant vers une étroite bande littorale, se trouve fréquemment enveloppé par l’ombre des massifs environnants, générant une ambiance à la fois archaïque et contemplative. Le projet se développe comme une réponse sensible à cette condition dramatique, cherchant une cohabitation respectueuse avec l’expressivité du terrain.

L’approche architecturale repose sur une logique de retrait, non comme effacement, mais comme stratégie d’atténuation de la présence bâtie. Deux volumes distincts, mais étroitement liés, émergent dans une composition fragmentée. Leurs toitures à double inclinaison dialoguent avec les lignes du relief, tout en fractionnant l’échelle du bâti. L’architecture semble déposée sur la topographie, presque en suspension.

Le toit du volume principal devient un espace clé : une terrasse-belvédère faisant office de seuil, de lieu de réception et de point de projection vers le paysage. Ce plan horizontal, rare dans un contexte dominé par la déclivité, instaure une transition contemplative entre le sol et l’horizon. L’accès à la maison se fait ainsi par une expérience contemplative, où l’acte d’habiter commence par la prise de conscience du lieu.
Organisé longitudinalement, le volume principal épouse le replat naturel sans altération excessive du terrain. Les espaces intérieurs s’ouvrent largement sur le lac, effaçant les limites entre dedans et dehors. Les terrasses prolongent les planchers et instaurent une continuité perceptive entre l’habité et le paysage.

La matérialité renforce cette inscription contextuelle. Le béton et le cèdre naturel, laissé à sa patine, dialogue avec les textures du site, tandis que le chêne blanc apporte une chaleur domestique à l’intérieur. Les éléments noirs agissent comme dispositifs de cadrage, prolongeant une lecture picturale du paysage.

Ni pastiche ni rupture, le projet explore une tension maîtrisée entre présence et effacement, proposant une architecture en creux qui révèle le lieu plutôt qu’elle ne s’y impose, et qui invite à habiter le paysage.

Clients : Sylvain Girard et Isabelle Robert 

Lieu

Potton, Québec, Canada

Commentaires du jury

Cette résidence utilise le dénivelé du site ainsi qu’une séquence réfléchie de matériaux et d’ouvertures pour révéler le paysage et donner envie de s’y déposer.