Palais de justice de Roberval 

Groupe A / Annexe U, GLCRM Architectes, ATSH architectes

Le projet

Le Palais de justice de Roberval s’inscrit dans un site naturel d’exception, au cœur du centre-ville historique, à la rencontre d’un tissu urbain patrimonial et du paysage littoral du lac Saint-Jean. Cette situation révélait à la fois un fort potentiel et des enjeux complexes dans la réalisation du projet : restaurer une architecture centenaire fragilisée, réparer des interventions ayant rompu sa relation au lac, moderniser les espaces judiciaires, intégrer un agrandissement d’envergure sans compromettre la valeur symbolique de l’édifice, et améliorer l’accessibilité et la sécurité. 

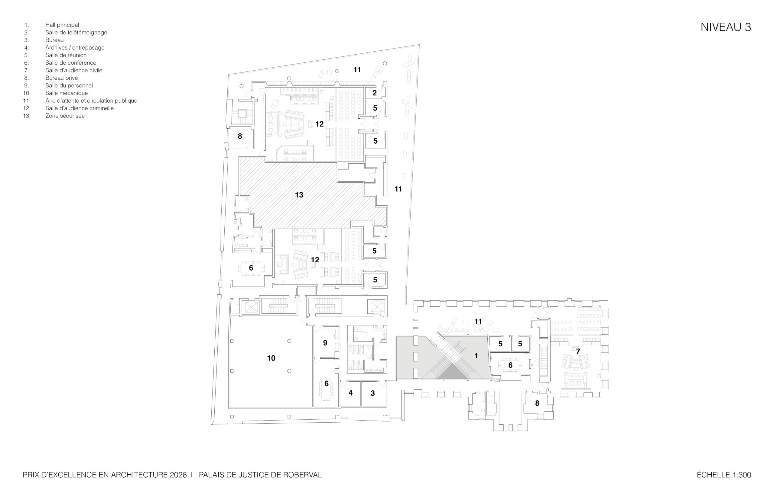
L’intervention repose sur une organisation claire des volumes, distinguant le bâtiment patrimonial restauré de l’agrandissement contemporain. Cette composition permet de répondre aux exigences de sécurité et de séparation des circulations, tout en préservant l’intégrité architecturale de l’édifice existant. Le bâtiment restauré accueille les fonctions d’accueil et la grande salle d’audience civile, tandis que les salles criminelles et jeunesse, ainsi que les circuits sécurisés, sont intégrés au volume ajouté. 

Le hall principal, ouvert sur trois niveaux, constitue le cœur civique du complexe. Aligné sur la tourelle du fronton central, il prolonge l’axe historique de la rue Roberval et s’ouvre de plain-pied sur une place publique orientée vers le lac, rendue possible par la démolition des anciennes annexes carcérales. Côté lac, une grande ouverture dans la façade historique marque l’entrée riveraine et initie la séquence publique. 

Cette séquence spatiale est conçue pour favoriser un repérage intuitif. Des vues cadrées vers l’extérieur, une lecture claire des volumes et des percées visuelles intérieures guident les déplacements. Les aires d’attente, orientées vers le lac, offrent un environnement apaisant. Les salles d’audience sont regroupées à l’étage noble, assurant une gestion efficace des flux et une organisation lisible. La matérialité, combinant granit local, aluminium et verre, soutient cette organisation architecturale et exprime le dialogue entre patrimoine et intervention contemporaine. 

Client : Société québécoise des infrastructures (SQI) 

Lieu

Roberval, Québec, Canada

Commentaires du jury

Rénové et agrandi, le palais de justice présente désormais des intérieurs de qualité caractérisés par des circulations claires et des vues magnifiées sur le lac Saint-Jean.