Triplex Mullins  

La Shed Architecture

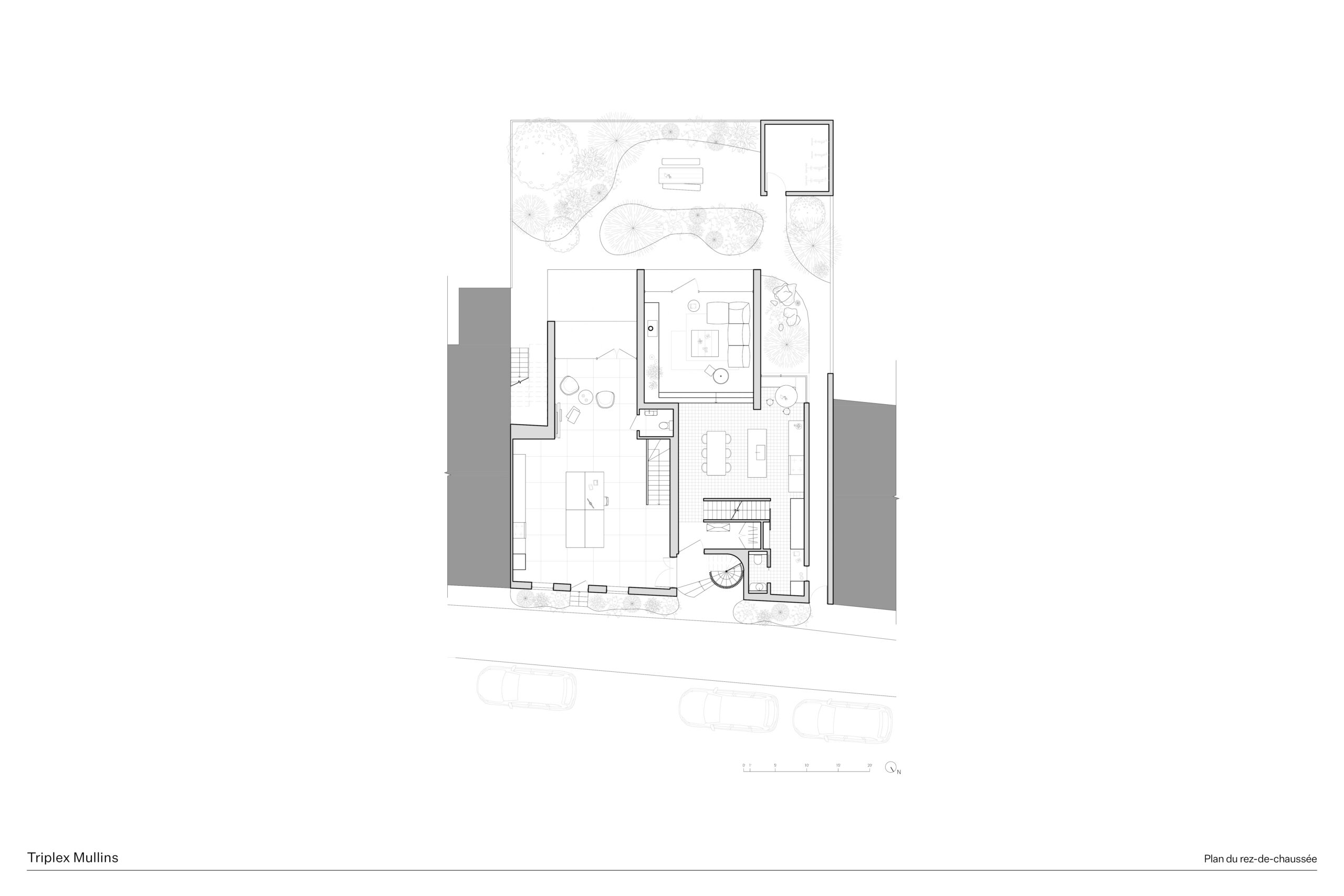
Le projet

Situé à Pointe-Saint-Charles, quartier montréalais marqué par son passé industriel et ouvrier, le projet du Triplex Mullins propose une transformation mesurée du tissu résidentiel existant. L’intervention consiste à agrandir un duplex afin d’y intégrer un troisième logement, sur un terrain contraint par la proximité des bâtiments, la présence d’une voie ferrée et un rapport direct à la rue. L’objectif est d’augmenter la densité tout en offrant des espaces lumineux, généreux et intimistes, favorisant une cohabitation harmonieuse entre occupants aux modes de vie distincts. 

La stratégie repose sur la récupération de l’espace de stationnement latéral pour y insérer le logement familial des propriétaires, réparti sur trois niveaux, tout en conservant les deux logements existants. Ce choix privilégie la transformation plutôt que la démolition, prolonge la vie utile du bâti et limite l’empreinte environnementale. Le programme combine habitation familiale, studio d’artiste et logement locatif, générant une diversité d’usages et de rythmes au sein d’un même ensemble. 

Sur le plan urbain, le nouveau volume agit comme médiateur entre deux typologies du quartier : les duplex en maçonnerie et les triplex coiffés de faux toits mansardés. La façade adopte une composition bipartite et légèrement décalée : les deux premiers étages s’alignent avec le front bâti voisin, tandis que le troisième niveau, plus léger, se place dans la continuité des couronnements adjacents. Les entrées en alcôve et la porte cochère réinterprètent des éléments vernaculaires, créant des seuils protecteurs entre la rue et l’espace privé. 

À l’intérieur, l’organisation spatiale privilégie la fluidité et la polyvalence. Les espaces de vie s’enchaînent progressivement, de la cuisine à la salle à manger conçue comme grande table de travail, jusqu’au séjour en double hauteur ouvert sur la cour. Les étages supérieurs accueillent des zones de détente, de jeu et de repos, dont une suite parentale donnant sur une terrasse nichée dans la canopée d’un érable conservé. La matérialité, riche et durable, soutient une expérience sensorielle chaleureuse, tandis que la lumière naturelle, les vues sur la végétation et le traitement acoustique contribuent au confort quotidien. Le projet illustre ainsi une densification sensible, attentive au contexte, aux usages et à la qualité de l’habitat urbain. 

Client : confidentiel

Lieu

Montréal, Québec, Canada

Commentaires du jury

L’ajout d’un troisième logement à un duplex existant a donné lieu à une subtile réinterprétation de la matérialité du quartier. Un bel exemple de densification douce.