VIVRE 2 

ACDF Architecture

Le projet

Le projet résidentiel VIVRE 2, comprenant 138 unités de logement, s’implante aux abords du futur Campus MIL de l’Université de Montréal, au cœur d’un secteur industriel en pleine transformation. Ce territoire, historiquement enclavé par les infrastructures ferroviaires et la gare de triage, fait aujourd’hui l’objet d’une requalification majeure liée à l’émergence d’un nouveau pôle institutionnel et à l’arrivée d’une population de professionnels. Le projet vise à agir comme un trait d’union entre deux réalités urbaines en mutation, tout en contribuant au désenclavement du secteur et à la continuité de la trame urbaine outremontaise. 

Le parti architectural repose sur un dialogue entre le langage industriel existant et l’esthétique institutionnelle contemporaine du Campus MIL et du Nouvel Outremont. L’architecture s’inspire des caractéristiques propres aux bâtiments industriels du secteur — volumétrie simple, expression rationnelle, répétition et sobriété formelle — tout en les réinterprétant afin d’assurer une intégration harmonieuse et une échelle résidentielle appropriée. La fragmentation volumétrique issue de la superposition de ces deux langages permet d’éviter une masse monolithique et favorise une meilleure insertion dans le tissu urbain. 

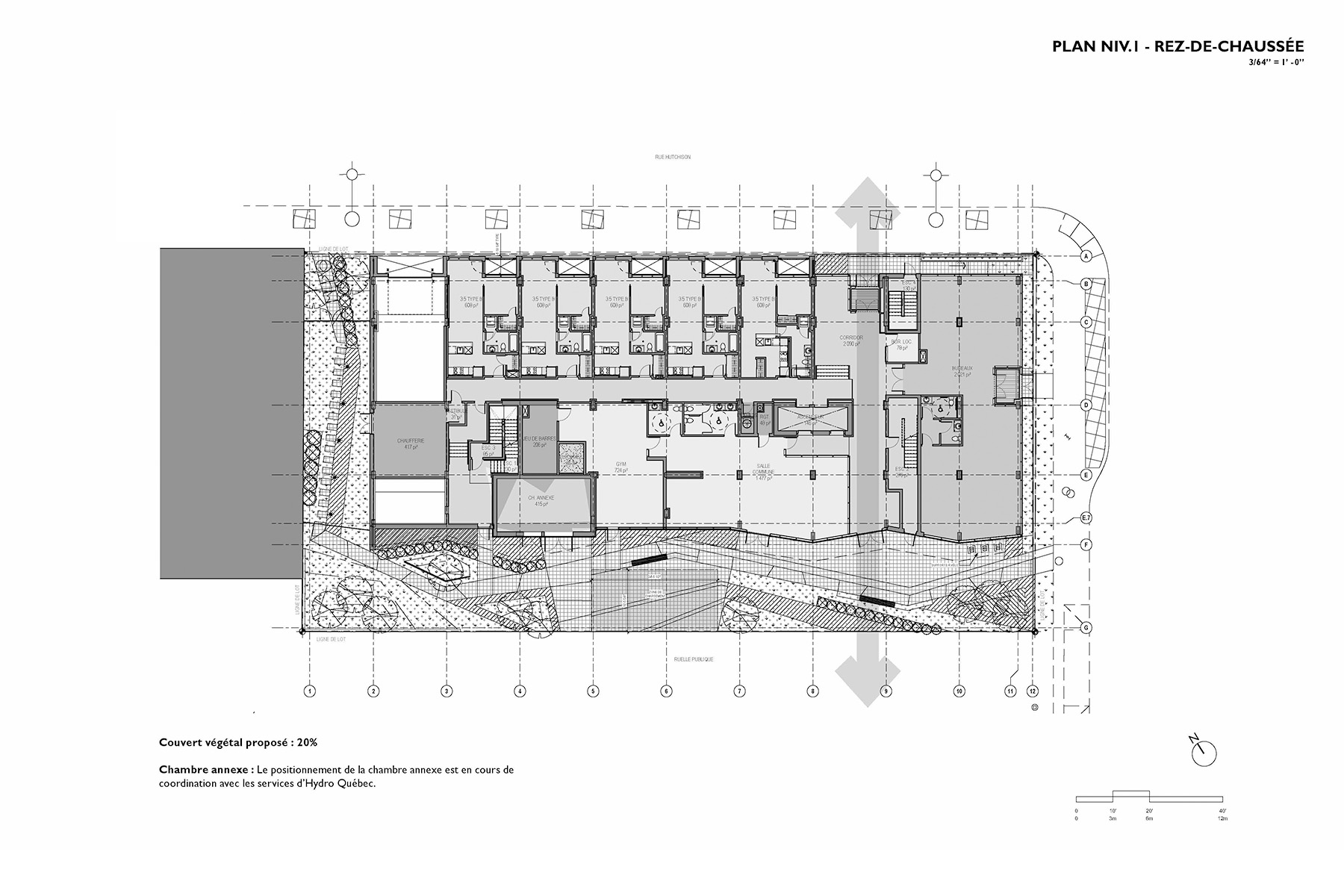
La ruelle bordant le site constitue un élément structurant du projet. Requalifiée comme promenade partagée et végétalisée, elle devient un espace de transition actif, connecté aux nouveaux axes du campus et aux phases résidentielles adjacentes. La signature formelle du projet s’exprime notamment par un jeu de balcons angulaires orientés vers la ruelle, intégrant terrasses et plantations, et faisant écho au projet VIVRE 1. 

Les façades sont traitées de manière différenciée selon leur orientation. Les loggias lumineuses, aux surfaces intérieures à fort facteur de réflectance, optimisent l’apport de lumière naturelle. À l’est, l’aluminium anodisé accentue la luminosité, tandis qu’à l’ouest, les balcons agissent comme dispositifs de protection solaire passive. L’ensemble contribue à une architecture cohérente, contextuelle et durable, répondant aux objectifs du PIIA. 

Client : Presti

Lieu

Montréal – Arrondissement d’Outremont, Québec, Canada

Commentaires du jury

Établi sur un terrain en friche, Vivre2 s’insère dans son quartier en revisitant les codes du bâti industriel environnant et en insufflant un raffinement essentiel à l’habitabilité du lieu.